Выберите город
| Тепловая мощность | 16 |
| Отапливаемая площадь | 160 |
| Вес | 332 |
| Тепловая мощность | 16 |
| КПД | 83 |
| Вес | 332 |
| Водяная емкость котла | 48 |
| Вход/Выход системы отопления | 1 ½" |
| Объем топочной камеры | 154 |
| Проем топочной дверцы - Ширина | 450 |
| Проем топочной дверцы - Высота | 290 |
| Глубина топки | 490 |
| Минимальная температура воды в обратной линии | 55 |
| Диаметр патрубка отходящих газов (наружный) | 159 |
| Рабочее давление | 1,5 - 2,5 |
| Скрыть кнопку калькулятора пеллет | Y |
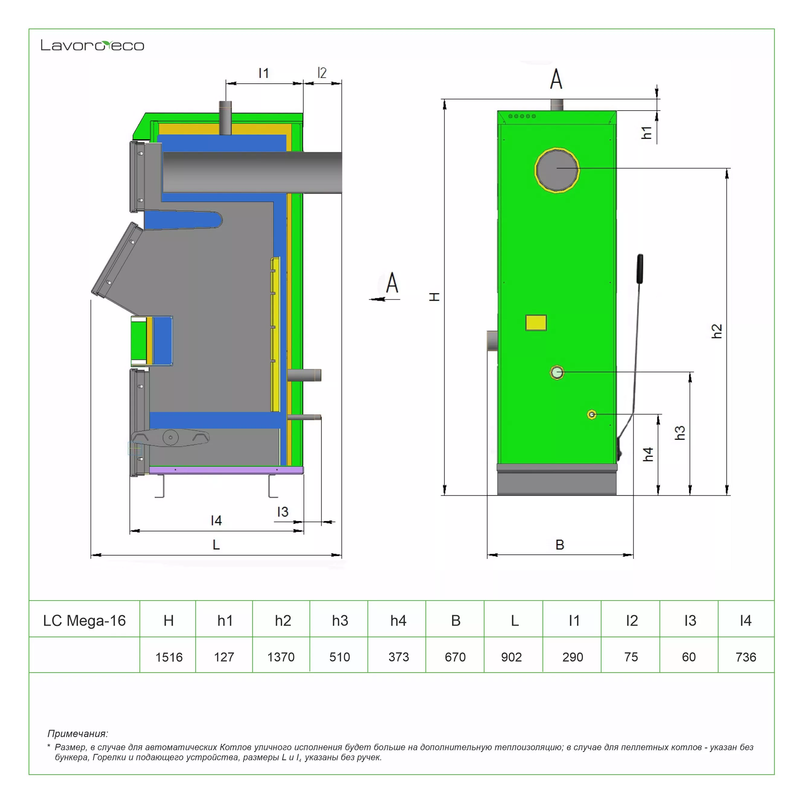
| Габариты (ВхШхГ) | 1516x670x902 |
| Отапливаемая площадь | 160 |
Котел Lavoro Carbone серии LC Mega - это современный стальной водогрейный котел, работающий в полуавтоматическом режиме, предназначен для отопления жилых и производственных помещений, а также для приготовления горячей воды (ГВС). В качестве топлива используется как основное - уголь, резервное древесина и различные виды топливных брикетов.
За счет того, что в комплекте котла установлена современная автоматика ECO100 , которая управляет подачей воздуха по средствам дутьевого вентилятора, значительно увеличивается длительность горения топлива на одной закладке, а также уменьшается его расход.
Так как основным видом топлива является уголь, то в конструкцию теплообменника внесены значительные изменения, а именно: чугунные колосники заменены на водонаполненные, выполненные из жаропрочной цельнотянутой толстостенной трубы, которая, во-первых, снимает излишнее тепло с поверхности колосников, и, во-вторых, в сравнении с обычными чугунными колосниками служит гораздо дольше. Кроме этого, в котле предусмотрено специальное устройство для очистки колосников от шлака, который образуется во время сжигания угля. Изменена конструкция загрузочной камеры и самой дверцы - теперь она расположена под оптимальным для пользователя углом, чтобы легко можно было загружать сыпучее топливо, например, уголь, в топку и не бояться, что драгоценное топливо рассыпется мимо. Все эти изменения специально разработаны, испытаны и внедрены в котлы серии LC для удобства их эксплуатации нашими дорогими клиентами. Принцип работы основан на том, что котел нагревает воду до заданной температуры путем подконтрольной подачи воздуха в топку, при достижении которой плавно переходит в режим тления (экономии).
Котел работает как в закрытых, так и в открытых системах отопления, топочная камера котла выполнена из стали марки 09Г2С толщиной 5 мм. Все стенки и перегородки котла водонаполнены. Котел оснащен большими и удобными дверцами с механизмом затяжки плотности прилегания. Благодаря этому его удобно чистить и обслуживать. Также все котлы оборудованы местом для установки электрического ТЭНа.

Интернет-магазин предлагает покупателем качественный товар авторитетных производителей, подтверждением являются сертификаты, сопровождающие каждое наименование продукции. Мы дорожим сложившейся репутацией, ценим своих клиентов и сотрудничаем только с официальными поставщиками — а, значит, все гарантийные обязательства будут выполнены в полном объеме. Гарантийное обслуживание выполняется в соответствии с требованиями закона «О защите прав потребителей» в оговоренные нормативными актами сроки.
Твердотопливный и только пиролизный
Даже самая совершенная система отопления дома бессмысленна без наличия качественного отопительного элемента. «Сердце» системы отопления – котел. А вот какой вы выберете котел для вашего дома – другой вопрос.
Производители котельного оборудования предлагают различные котлы с вариантами нагрева теплоносителя: от электрического нагревания до сжигания различных видов топлива.
Рассмотрим различные варианты современных отопительных котлов для установки системы отопления дома.
Газовые котлы. Газовое оборудование обладает рядом достоинств, это- широкое распространение топлива, бесшумное горение газа, хорошая теплоотдача. Так же газовые котлы обладают рядом недостатков: установку газового оборудования в своем доме можно доверять только профессионалам, поскольку это легковоспламеняющееся топливо, постоянно растущие цены на газ.
Электрические котлы обладают также немалыми удобствами. Они просты в управлении, компактны, места для хранения топлива не требуется, равно как и системы дымоходов. Электрическое отопление совершенно безопасно для окружающей среды. Но и у электрических котлов есть свои минусы. Во-первых, это дороговизна ресурса. Во-вторых, электричество есть не везде, где-то случаются частые перебои с подачей электроэнергии, которые могут негативно сказаться на оборудовании. Одним словом, установка электрического котла обойдется недешево и подходит не для всех регионов.
Котлы жидкотопливные подходят только для домов, поскольку для установки в квартирах не приспособлены. Жидкое топливо для таких котлов – дизельное. Оно сравнительно недешевое, имеет характерный запах. Такой котел размещают обычно в отдельном помещении. Расход топлива даже для небольшого помещения достаточно велик, поэтому жидкотопливные котлы являются достаточно специфическим отопительным оборудованием.
Наконец, котлы твердотопливные. Котлы на твердом топливе также не предназначены для установки в квартирах. Тем не менее подобный котел может стать решением множества проблем. Так, он работает без подключения электроэнергии!, на самом доступном виде топлива в нашей стране – дровах. КПД современных твердотопливных пиролизных котлов достигает 85%. Эти котлы имеют терморегуляторы и надежные системы безопасности. Время от закладки до другой может занимать до 12 часов.
Отопление дома, основанное на твердотопливном котле, экологически безопасно, просто и надежно.
Главным отличием котлов с пиролизным сжиганием топлива является то, что в котлах на твердом топливе сжигаются не только сами дрова, но и древесный газ, выделяемый из них под воздействием высокого давления и температуры. Сажа во время такого сгорания не образуется, и количество золы минимально. В котлах с таким сжиганием древесный газ, который возникает в топливном бункере при помощи высокой температуры, проходит через специальную форсунку и горит пламенем желтого или почти чисто белого цвета.
В основе работы котла на твердом топливе заложен принцип пиролизного сжигания топлива, суть которого заключается в следующем: в условиях недостатка кислорода и под действием высокой температуры сухие дрова разлагаются на летучую часть— пиролизный газ и твердый остаток— кокс (древесный уголь).
Пиролиз древесины происходит при температуре 200–800°С. Это экзотермический процесс, то есть идущий с выделением тепла и за счет этого улучшается прогрев и подсушивание дров в котле и происходит подогрев воздуха, поступающего в зону горения.
Соединение кислорода с выделившимся древесным газом при высоких температурах вызывает процесс горения этого газа, который используется в последствии для выработки тепловой энергии. При этомотметим, что пиролизный газ в процессе сгорания взаимодействует с активным углеродом, в результате чего на выходе из котла дымовые газы практически не содержат вредных примесей, по большей части, являясь, водяного пара и углекислого газа. И даже СО2 пиролизный котел на твердом топливе будет выбрасывать в окружающую среду до трех раз меньше, чем обычный дровяной котел а, тем более, угольный котел.
Основные преимущества котлов на твердом топливе длительного горения выражается в более высокой эффективности (КПД до 85%) и возможности регулирования мощности (обычно в промежутке от 30 до 100%).
Главным отличием котлов с пиролизным сжиганием топлива является то, что в котлах на твердом топливе сжигаются не только сами дрова, но и древесный газ, выделяемый из них под воздействием высокого давления и температуры. Сажа во время такого сгорания не образуется, и количество золы минимально.
Так же преимущества – это:
Контролируемый процесс горения топлива (регулируется подачей воздуха) — до 12 часов горения с одной закладки топлива (у обычных твердотопливных котлов на дровах около 2-3 часов).
Полное сжигание топлива. Это значит, что гарантирована экономичность горения, реже надо чистить дымоход и убирать золу из отопительного котла.
Сжигание в два этапа обеспечивает снижение избытка воздуха в уходящих газах (повышение экономичности).
Процессом горения пиролизных газов без труда можно управлять, что позволяет сделать работу твердотопливного котла автоматизированной, приблизительно так же, как и работу газовых или жидкотопливных котлов.
Снижение выбросов вредных газов в окружающую среду (высокая температура в верхней камере котла расщипляет угарный газ СО).
Использование газогенераторных котлов длительного горения стимулирует к отказу от использования неподсушенного топлива, это в свою очередь повышает эффективность хозяйствования.
Возможность сжигания в котле крупных дров большого диметра. Следовательно экономичность твердотопливных котлов длительнго горения по сравнению с «традиционными» котлами прямого горения выше в 3-4 раза.
В качестве топлива для данных котлов может использоваться любой вид древесины (лиственных пород), при условии, что влажность её находится в допустимых пределах. Редкая (не чаще раз в 6-10 часов) подкладка топлива в течение суток обеспечит работу котла, при этом эффективность, в сравнении, с обычными твердотопливными котлами прямого горения – намного выше. Все дело в температуре сгорания пиролизного газа, которая значительно выше температуры горения дров.
Исходя из вышесказанного, становится ясно, что использование твердотопливных газогенераторных отопительных котлов длительнго горения является более экологичным способом отопления, при этом большое количество тепла, выделяемого при сгорании топлива, делает такие отопительные котлы ещё и экономически выгодными.
Твердотопливные пиролизные котлы Lavoro Eco практически всеядны. Топить их можно разными видами топлива. Тем не менее каждый вид твердого топлива для пиролизных котлов обладает присущими только ему свойствами, следовательно, вопрос чем топить котел немаловажен.
Дрова
Дрова для топки твердотопливных котлов должны быть непременно сухими, от этого будет зависеть тепловая отдача котла.
При закладке поленьев в топку следует обратить внимание на то, что располагать их следует плотно друг к другу, вверху должно иметься свободное пространство не менее 200 мм. Первая закладка составляет порядка половины порции дров, по мере прогорания забрасываются остальные, в зависимости от емкости топливника. Дрова сгорают неравномерно – их необходимо аккуратно раскладывать по поверхности топки, не охлаждая котла.
Топку дровами невозможно автоматизировать, но как плюс – это экологичный способ отопления любых помещений без ущерба окружающей среде.
2. Торф
Как и дровами, торфом можно топить практически все твердотопливные котлы. При выборе торфа, как вида топлива, необходимо придерживаться определенных правил.
Топливник должен быть очищен от золы, дверца поддувального отделения должна быть закрытой. Слой торфа лучше выкладывать на колосниковую решетку, сверху положить немного дров для растопки, прикрыть еще одним слоем торфа. Открыв задвижку дымохода, можно приступать к растопке. Все время работы котла необходимо следить за тем, чтобы торф лежал равномерным слоем, это обеспечит оптимальную теплоотдачу.
3. Уголь
Выбирая уголь как топливо для котла, внимательно изучите инструкцию: подходит ли вашему котлу данный вид топлива. Если проблем не возникает, учимся.
Угольное топливо для выдачи наилучшего уровня тепла потребует особого топливника – шахты с вертикальными стенками и колосниковой решеткой. Топливник должен быть высоким, от свода до решетки должно быть не менее 50 см. Поддувальные и топочные дверцы рекомендуется делать чугунными, строго герметизировать, оптимальное расстояние между ними выдерживать порядка 21 см. При топке углем следует помнить, что новую порцию стоит подбрасывать только тогда, когда первая уверенно разгорелась, при этом каждый раз необходимо прикрывать поддувальную дверцу, а также не допускать прогорания угля до решетки, поддерживая равномерный слой.
Стоит помнить о том, что каменный уголь, уголь марок ПЖ и Ж, ПС и СС, а также марки Т требуют смачивания согласно инструкциям. И только антрацит смачивания не требует, если только для уменьшения выделения пыли.
Для оптимального разгорания уголь должен быть наколот кусками размером 30-50см.
4. Брикеты
Брикеты на сегодняшний день являются оптимальным средством для топки твердотопливных котлов. Брикеты могут быть угольными или торфяными.
Так, использование брикетов дает вам следующие преимущества:
высокая теплотворность;
сгорание брикета без остатка;
ровный процесс горения: нет необходимости поправлять слои, вмешиваться в процесс горения;
плотность горящего слоя, при этом небольшое количество пламени – как следствие, минимальное количество дыма;
удобство фасовки брикетов: под любой размер топливника.
Топку котла ведут до полного сгорания брикетов. Если во время чистки обнаруживаются несгоревшие брикеты, их выкладывают и используют вторично.
Какой бы вид твердого топлива вы не выбрали для себя, следуйте инструкциям, и ваш котел будет служить вам верой и правдой, хорошо выполняя свое назначение.
Твердотопливные пиролизные котлы длительного горения работают намного экономичнее, чем любые твердотопливные котлы с прямым сжиганием дров.
Для работы отопительного газагенераторного котла длительного горения не требуется никакой специальной регулировки. Температура воды (теплоносителя) стабильна - ±3°С, пока в топке есть топливо (не менее 10%, от полной загрузки).
Котел Lavoro быстро выходит на эффективный режим работы – порядка 30-60 минут (на выходе температура воды составляет +60 - +90°С), как при подключении к системам отопления с принудительной циркуляцией, так и при подключении к системам отопления с естественной циркуляцией.
Автономность. Электронезависимость. Отопительный водлогрейный котел Lavoro не имеет в конструкции каких-либо вентиляторов и т.п. При подключении к системе отопления с верхним розливом, естественной циркуляции насосов не требуется, газагенераторный котел длительного горения Lavoro сам создает достаточное давление для более эффективной циркуляции.
Для работы твердотопливного котла длительного горения не требуется никакой специальной отопительной системы.
Котел Lavoro длительного горения не нуждается в дымоходах с толщиной трубы более чем 1 мм из коррозионно-стойкой и жаростойкой стали (нержавейки), так как температура отходящих газов, при правильном использовании пиролизных котлов, не превышает 140-150°С;
Твердотопливный водогрейный котел не нуждается в частой выемке отходов сгорания, топливо сгорает полностью, практически не оставляя золы. Отсутствие золы после сгорания топлива и светлый прозрачный дым на выходе из дымохода свидетельствует о том, что сгорание топлива происходит весьма и весьма эффективно.
С появлением электроэнергии появились воздушные отопители, работающие от электросети. А также со временем стали набирать популярность отопители на жидком топливе: бензине, масле, солярке. Однако, несмотря на уровень прогресса и многообразие предлагаемых вариантов, в нашей стране самым привычным и доступным по-прежнему остаются различные печи на твердом топливе.
Русская печь издавна являлась лучшим центром воздушной системы отопления и прообразом современных агрегатов воздушного отопления.
Однако принцип сгорания твердого топлива был и остается одним и тем же: в топке сгорает топливо и кислород, дым выходит через трубу.
Сейчас есть усовершенствованный вариант подобного отопителя – пиролизная печь "LavoroEco".
Именно пиролизная печь в своей основе имеет принцип пиролизного сгорания топлива. Пиролиз древесины – это процесс разложения при высокой температуре без доступа воздуха с образованием газа и золы.
В пиролизной печи дрова сгорают без доступа воздуха, а выделившийся в процессе газ поступает в пиролизную камеру, где и сгорает, смешиваясь с кислородом. Именно это горение и обеспечивает дополнительное тепло для нагревания металлической конструкции печи.
Твердотопливная пиролизная печь, по сравнению с привычными нам печами, гораздо более сложна по устройству.
Устроенные по принципу пиролизного сжигания, эти печи позволяют значительно экономить твердое топливо, поскольку время от закладки до закладки увеличивается до 8-10 часов.
Поэтому пиролизные печи могут стать отличной основой для воздушной системы отопления дома.
Во-первых, не нужно создавать систему труб и батарей, поскольку теплоносителем выступает воздух. Во-вторых, такой системе отопления не грозит разморозка.
Использование подобных печей позволяет создавать и центральные, и местные системы воздушного отопления. Таким образом, пиролизные печи могут составить отличную конкуренцию другим видам отопительным агрегатов.
В основе работы пиролизных твердотопливных котлов и тепловых пушек длительного горения лежит принцип пиролиза - термического разложения древесины при ее нагревании без доступа воздуха. Главное видимое отличие в сравнении с классическими котлами и пушками на твердом топливе заключается в том, что топливо горит не открытым пламенем, а равномерно тлеет. В результате выделяется пиролизный газ, который вступает в химическую реакцию с кислородом, смешиваясь с ним в пиролизной камере. Тепловая энергия, выделяющаяся в результате химической реакции, используется для нагрева теплоносителя - воды или специальной незамерзающей жидкости для систем отопления.
В пиролизном котле «Lavoro eco» не происходит прямого сгорания топлива, поэтому топка имеет небольшие размеры, что в итоге сказывается на размерах самого котла - они значительно меньше обычных твердотопливных.
Котлы «Lavoro eco» работают в несколько раз экономичнее, чем любые газогенераторные котлы, не говоря уже о котлах прямого горения. Экономия топлива в 6-10 раз по сравнению с котлами прямого горения!
Котлы работают эффективно с одной закладки топлива от 8 часов до 21 часа. Эффективность зависит от того, насколько правильно сделана система отопления, дымоходов, а также характеристик топлива.
Котлы "Lavoro eco" (Лаворо) не требуют постоянной регулировки работы. Температура теплоносителя (воды) стабильна: +/-3°С, пока в топке есть топливо (не менее 10% от максимальной загрузки).
Котлы "Lavoro eco" (Лаворо) автономны и энергонезависимы. Не оборудованы вентиляторами. При подключении к системе отопления естественной циркуляции с верхним розливом не требуется насосов, котлы сами создают достаточное давление для наиболее эффективной работы.
100% ремонтопригодность. Прямой доступ к любому узлу котла.
Не секрет, что современное общество стремится к экономии – времени, денег, ресурсов. Обустраивая свой частный дом, мы все чаще задаемся вопросом: как сделать его экологичным, надежным, простым в использовании, оборудованным экономичными системами тепла и света.
Оказывается, решение есть. Система водяного отопления может быть энергонезависимой – с естественной циркуляцией теплоносителя.
Физических свойств воды еще никто не отменял: нагреваясь в отопительном котле, вода становится более легкой, поднимается по основному стояку наверх, оттуда переходит по разводящим трубопроводам через стояки в радиаторы. Отдавая часть тепла, вода, как теплоноситель, становится опять более тяжелой, спускается по трубам обратной разводки вниз, в котел, тем самым вытесняя нагретую воду наверх. Получается, что вода движется по трубам под воздействием гидростатического напора, возникающего из-за различной плотности нагретой и охлажденной жидкости. Циркуляционное давление также зависит от разницы между температурами нагретой воды и уже охладившейся. Сила естественной циркуляции в системе отопления будет зависеть и от высоты расположения нагревательного прибора над котлом: чем выше находится нагревательный прибор, тем большее для него будет циркуляционное давление.
Кроме того, количество тепла, которое помещению отдают радиаторы, подчиняется количеству воды и ее температуре. Количество воды, проходящее через трубопровод к радиатору, в свою очередь, зависит от циркуляционного давления. Диаметр трубы выбирается с учетом того, какое давление будет в трубе: чем оно больше, тем меньше может быть труба. Применяется два вида устройства подобной системы: с верхней разводкой и с нижней разводкой.
В заключение отметим все плюсы и минусы системы водяного отопления с естественной циркуляцией.
Среди достоинств такой системы отопления:
простой монтаж и ввод в эксплуатацию;
экономичное и легкое использование системы;
нет необходимости в установке дополнительного оборудования: циркуляционный насос не требуется, следовательно, система становится тише;
система отопления с естественной циркуляцией долговечна – при грамотной эксплуатации срок ее службы без капитального ремонта может составлять до 40 лет;
саморегулирование системы.
К недостаткам можно отнести следующее:
включение системы требует некоторого времени;
необходимость использования труб большого диаметра приводит к повышению затрат на установку системы;
есть риск «замерзания» системы в холодное время года.
Во-первых, многие люди до сих пор получает счета от коммунальных служб, которые расчитываются по так называемому «среднегодовому тарифу», во-вторых, летом у многих в квартирах и домах нет горячей воды и, несмотря на жаркую погоду, это неудобно, а что говорить про загородные частные дома и коттеджи.
И злободневный вопрос «как и чем отапливать частный дом?» заставляет многих искать различную информацию в специализированных журналах или в интернете на форумах и сайтах.
Для того, чтобы обеспечить себя и свою семью горячим водоснабжением и надежным, комфортным и доступным теплом, нужно подойти к вопросу отопления очень серьезно.
Если выполнить все необходимые требования, то система отопления в доме будет долго функционировать и обеспечивать вас теплом с минимальными затратами.
От отопления Вы можете ожидать большего, нежели простого нагрева помещения, а именно комфортного тепла с поддержанием нужной Вам температуры воздуха.
Вам предстоит преодолеть много сложностей и забот, прежде чем дом Вашей мечты будет готов.
Забота «Lavoro eco» сделать этот путь наиболее легким и коротким, ведь современный коттедж немыслим без системы отопления и горячего водоснабжения.
Теплогенератор (отопительный котел, тепловая печь), в котором вырабатывается нужное нам тепло.
Трубы, по которым циркулирует вода (теплоноситель), доставляющая тепло от котла по отопительной системе.
Непосредственно система отопления помещений, обычно состоящая из радиаторов. Возможно также использование системы отопления другого типа – «теплый пол». И та и другая отопительная система передает выработанное котлом тепло воздуху в помещении.
Главное что нужно запомнить: котельная и система отопления должны быть детально продуманыеще на этапе проектирования частного дома. С точностью до сантиметра необходимо обозначить места под радиаторы и каналы труб, указать количество труб и фитингов, рассчитать мощность котла и бойлера и подобрать модели которые подходят по расчетным данным.
Примерная мощность котла определяется следующим соотношением:
1кВт мощности котла на 10 м2 отапливаемой площади.
Это значит, что уже на начальном этапе выбора отопительного котла можно определиться с подходящей Вам моделью.